少し珍しい形状の階段手摺を製作することになったので、製作、取付までの流れについて今回はなるべく具体的に、少しづつアップしていこうと思います。
お客さんに概要図面を頂き、現場の状況を地図や現場を直接確認するなどして、製作、取付、取付に必要な設備について確認した後、金額の折り合いが付き、製作スタートです。

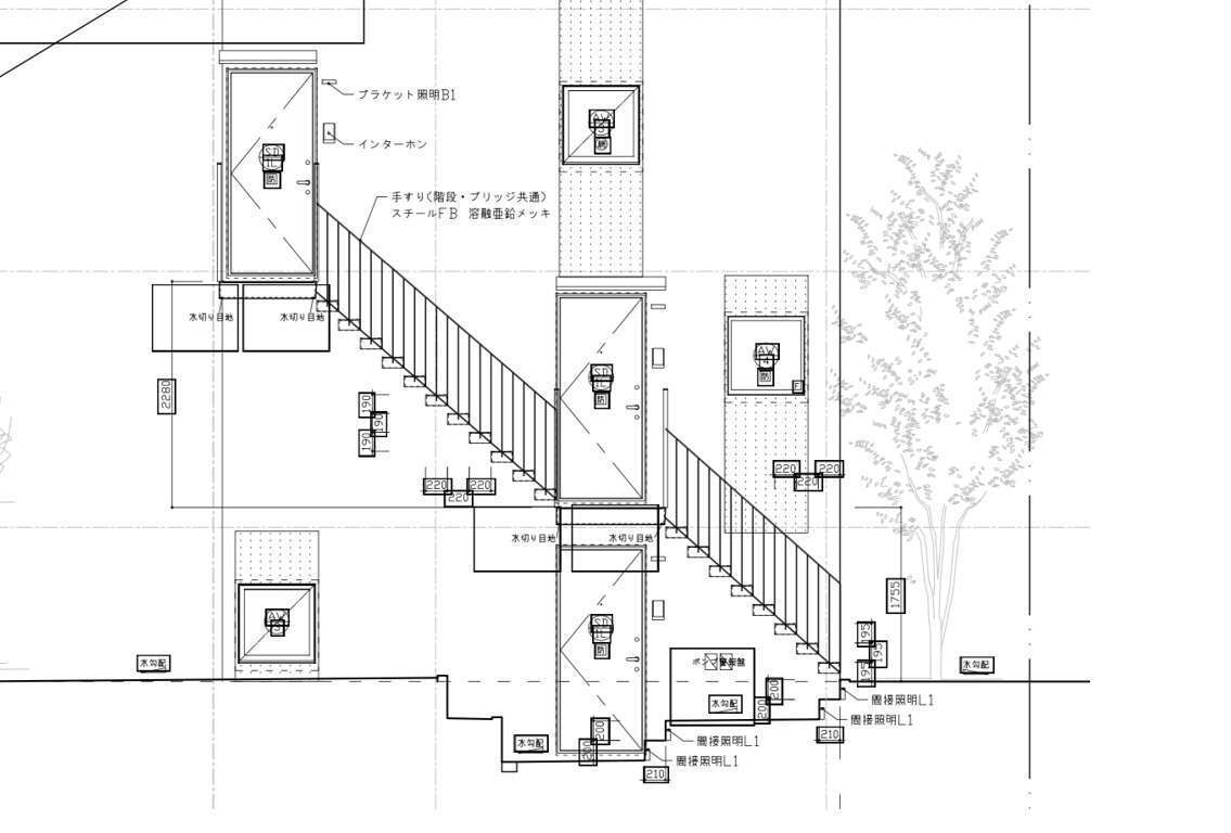
設計図書から、施工図の製作
頂いた図面や資料などから施工図を製作し、お客様に形状、納まりなどについて問題が無いかどうか確認していただきます。



こちらの図面で、お客様の了承が頂けたので今度は現調になります。RCの建物は精度を出すのが難しく、後から左官で仕上げたりしますが、大抵階段の蹴上高さなどはまちまちだったりすることが多いです。
ある程度、正確な寸法を計測しないと現場で綺麗に納まりません。
また、今回の手摺は溶融亜鉛メッキの仕上がりになりますので、極力現場での補修は避けたいところです。(次回に続く)




